We use cookies to personalise content, to provide social media features and to analyse our traffic and support our customers. We also share information about your use of our site with our social media, advertising and analytics partners who may combine it with other information that you've provided to them or that they've collected from your use of their services. You consent to our cookies if you continue to use our website. Learn more

Restaurant Premises, Church Street, Wicklow, Co. Wicklow, A67 TW60

Industrial | Sale

Details

Forkin Property are delighted to offer this turn-key, refurbished, restaurant to the market. This is a wonderful opportunity to acquire the Freehold interest of this unique, stone-built, 80 plus cover restaurant premises. This is a well established, high-profile, restaurant location just off Fitzwilliam Square and Wicklow Main Street and enjoys a high level of footfall as it is close to the main shopping area, main car park and Wicklow Riverwalk.

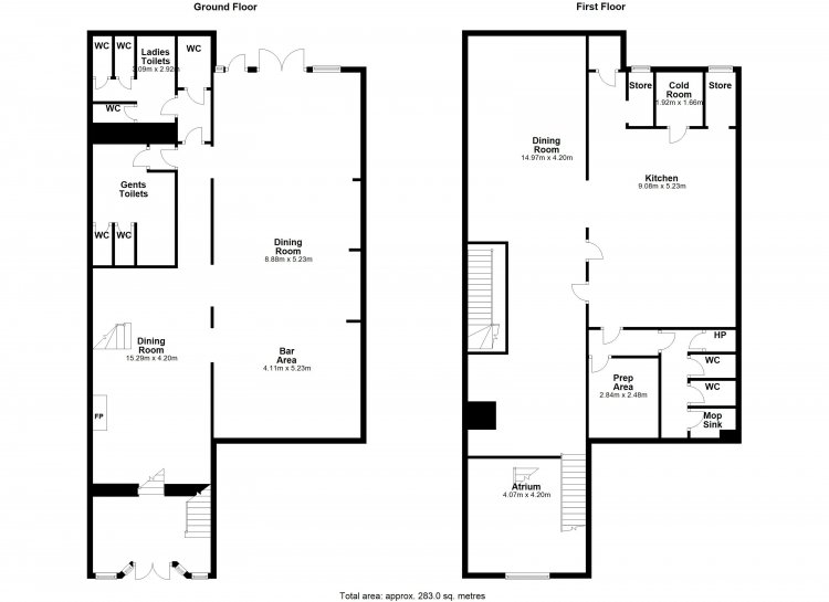
The property has recently been fully refurbished and upgraded to a very high standard including newly renovated customer bathrooms, decoration, flooring throughout, light fittings etc. The originally building dates back to the 1800's when it was a working bakery and still has much of its old world charm and original features. The restaurant is laid out over two floors and offers approximately 283 sq,m (3,046 sq.ft) of internal accommodation. At street level there is a double height foyer/atrium area with steps down to a customer waiting area. To right hand side there is a fully fitted bar and dining room. To the left are the ladies and gents bathrooms. On the first floor level is an open dining room with feature vaulted ceiling with exposed beams and stone walls. To the right is the fully fitted commercial kitchen off which is the prep area, staff changing rooms, cold room and stores.

Viewing highly recommended and by appointment only!


Map Details


Estate Agent

Matt Forkin

Estate Agent

Contact Matt