We use cookies to personalise content, to provide social media features and to analyse our traffic and support our customers. We also share information about your use of our site with our social media, advertising and analytics partners who may combine it with other information that you've provided to them or that they've collected from your use of their services. You consent to our cookies if you continue to use our website. Aprende más

Vartry Garage, Blainroe, Wicklow Town, Co. Wicklow, A67 FT59

Industrial | Lease

Detalles

Exceptional High-Spec Commercial Premises Available To Let

Forkin Property are delighted to present Vartry Garage, an outstanding, high-profile commercial premises, to the market To Let. Situated just minutes from Wicklow Town in Blainroe, this is an unparalleled opportunity to lease a premium commercial facility in a commanding coastal location.

Currently home to a very successful motor sales and servicing business, Vartry Garage holds main dealerships for both Kia and Peugeot, and has built a very strong reputation over the years.

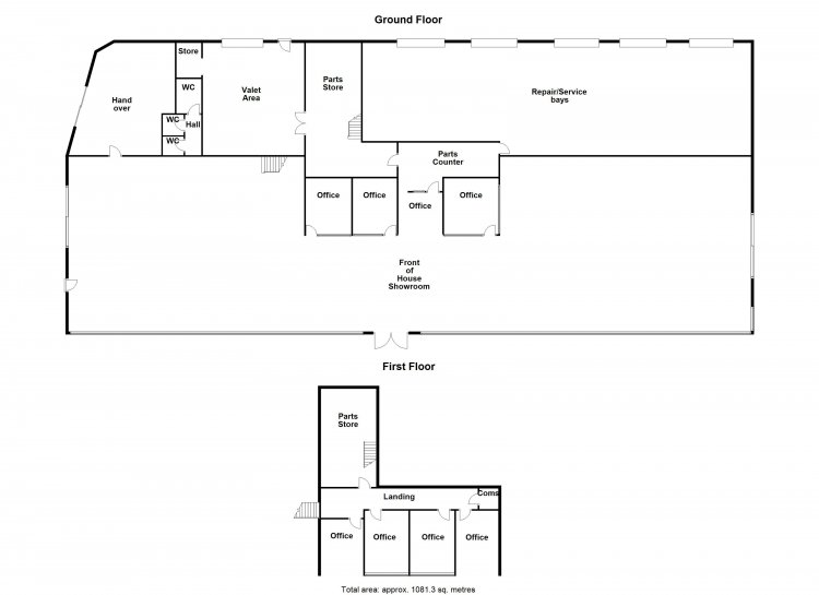
Set on a generous, elevated site of approx. 2 acres, the premises includes a high-spec, purpose-built showroom and workshop facility, extending to approximately 1,164 sq.m (12,529 sq.ft) and comprising a double height glazed showroom with 9 offices over two floors, a reception area, store room, valeting bay, handover bay, staff room and guest bathrooms. In the workshop, there are 6 fully fitted bays and 6 roller doors providing access. There is extensive secure yard space with gated access with ample parking.

Directly opposite the main site, a separate self-contained commercial centre offers an additional office and secure gated yard space, perfect for back-office operations, admin, or as a standalone rental opportunity.

This is a truly flexible offering suitable for a wide range of commercial uses, including:

  • Motor sales and servicing

  • Destination retail or showrooms

  • Fitness/wellness centre or studio

  • Food production, artisan bakery, or specialty grocer

  • Distribution or logistics hub with customer-facing front

With its outstanding build quality, premium roadside profile, and established commercial history, Vartry Garage is one of the finest commercial leasing opportunities currently available in the Wicklow region.

For further information or to arrange a private viewing, contact Forkin Property today.


Map Details


Agente inmobiliario

Matt Forkin

Estate Agent

Contacto Matt