Detached House | Sale
O’Donnellan & Joyce Auctioneers are delighted to bring to market this spacious, energy-efficient property with scenic views in Caherlistrane, Co. Galway.
Nestled on an elevated site in the peaceful countryside of Caherlistrane, this beautifully maintained home combines comfort, efficiency, and style—all within commuting distance of Galway City.
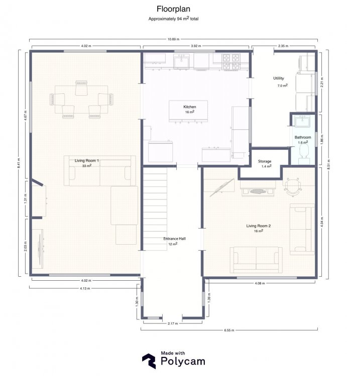
Built in 2001, this substantial residence offers approx. 181m² of well-laid-out living space (excluding a fully converted attic) along with an impressive 80m² double-cavity outbuilding, providing incredible flexibility for work, storage, and leisure.
This home is positioned on a private, elevated site with uninterrupted scenic views, ideal for enjoying sunsets over Knockma Hill.
Prime Location for Commuters and Nature Lovers • 20–25 mins to Galway City • 12 mins to Tuam and M17 motorway • 30 mins to Athenry • 45 mins to Castlebar • Just 3km from the popular Knockma Hill Forest Trail
This bright and spacious home offers a modern, open-plan layout, perfect for family life. All bedrooms are generously sized—each capable of fitting a super king or twin beds—and feature built-in storage, blackout blinds, and efficient oil-fired radiators.
Two solid-fuel fireplaces (open and stove) add cozy charm to the living areas.
Rated BER B2, this property qualifies for green mortgage rates and benefits from substantial energy-saving upgrades, including: 17 Jinko 430W solar panels, discreetly positioned on the shed roof Huawei 5KTL hybrid inverter (battery-ready) MyEnergi Eddi immersion diverter for solar-powered water heating Upgraded double-glazed windows with new airtight seals and hinges, under guarantee Pumped cavity wall and attic insulation Dry-lined walls and hollow-core concrete floors for better heat and sound insulation Oil-fired central heating throughout
RELIABLE UTILLITES AND UPGRADES Water: Connected to the Caherlistrane–Kilcoona Group Water Scheme, known for high-quality drinking water Wastewater: Private septic tank with recently upgraded percolation piping
This property benefits from versatile outbuildings and great outdoor living facilities. A standout feature is the 80m² hipped-roof shed, split into three distinct, functional spaces:
Large garage/workshop with roller door, mezzanine storage, shelving, and fluorescent lighting
Fully skimmed central room with external access - ideal as a home gym, office, or games room
Fuel/turf store with roller door, supplied with turf
THE PROPERTY ALSO INCLUDES: Fully tarmacked driveway wrapping around the house Wide concrete access to all outbuildings Beautifully stone-masoned front wall and flowerbed Low-maintenance landscaping with carpet roses, shrubs, lavenders, and native trees Private rear garden with fencing, mature planting, gated access, and a patio area complete with custom-built picnic seating and panoramic views
WELL CONNECTED FOR SCHOOLS AND TRANSPORT School bus at the gate for all Tuam secondary schools and Castlehackett National School Just 250m from school bus routes to Presentation College Headford and Claregalway Educate Together Other local schools: Kilcoona, Knockroon, Belclare
COMMUNITY AND LIFESTYLE Situated on a popular 5km walking/running loop, the home is located within the parish of Caherlistrane and close to Corrandulla and Corofin communities. Just 2.5km away, Caherlistrane village offers: Donaghpatrick National School & playground TFI public transport links to Galway and Tuam A thriving local community with a wide range of sports and heritage clubs: St. Patrick’s Soccer Club Caherlistrane GAA & LGFA Kilcoona Scouts Sylane Hurling & Camogie Club
This property offers the perfect blend of rural tranquillity, energy efficiency, and modern family living—just a short drive from Galway City. Whether you’re seeking a spacious home, a base for remote work, or a lifestyle upgrade, this residence delivers on all fronts.
Viewing is highly recommended and guaranteed not to disappoint.
Keep up to-date with NEW PROPERTIES by registering your details on our database
For Further details please contact our office on 091-564212 OFFICE OPENING HOURS - MON TO FRI 9AM TO 5:30PM
Properties can be viewed on our website www.odj.ie
NOTE: These particulars are not to be considered a formal offer. They are for information only and give a general idea of the property. They are not to be taken as forming any part of a resulting contract, nor to be relied upon as statements or representations of fact. Whilst every care is taken in their preparation, neither O’Donnellan & Joyce Auctioneers nor the vendor accept any liability as to their accuracy. Intending purchasers must satisfy themselves by personal inspection or otherwise as to the correctness of these particulars. No person in the employment of O’Donnellan & Joyce Auctioneers has any authority to make or give any representation or warranty whatever in relation to this property.