We use cookies to personalise content, to provide social media features and to analyse our traffic and support our customers. We also share information about your use of our site with our social media, advertising and analytics partners who may combine it with other information that you've provided to them or that they've collected from your use of their services. You consent to our cookies if you continue to use our website. Learn more

Ballynagrena Dunleer Co. Louth A92 T6F8 IE

Detached House | Auction

Area:
2390ft2
Beds:
4

Details

For Sale By Online Auction 29th September 2021

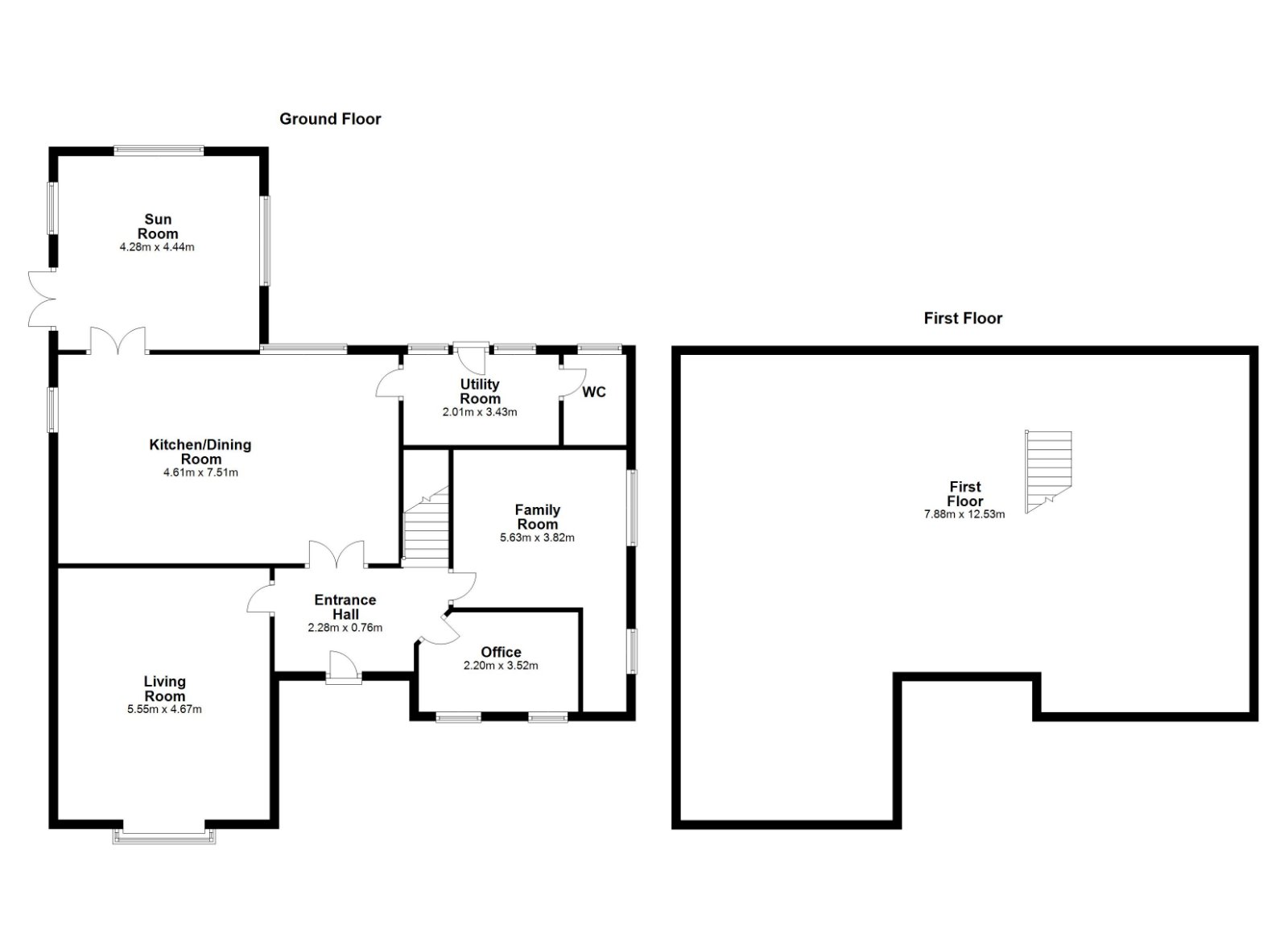
The property comprises a part completed two storey dwelling extending to approx. 222sqm. The garden extends to approximately 0.6. There is additionally a block built shed/workshop (76sqm approx.) on the grounds which also requires considerable refurbishment....

The accommodation comprises entrance hall, 3 reception rooms, 4 bedrooms, 2 bathrooms, kitchen and utility. The site extends to approx. 2428 sqm comprising gardens surrounding the dwelling.

Located approx. 2km to the east of Dunleer village in a rural setting along a minor country road. Dunleer is situated 12km north of Drogheda town just off the M1 motorway at J12. Local amenities include both primary and secondary school, village shops, church, bars and restaurants. Public Bus service available from Dunleer to both Drogheda and Dundalk..


Map Details


Estate Agent

Edwin Dempsey

Estate Agent

Licence Number: 003903

Contact Edwin

Ed Dempsey and Associates

Ed Dempsey and Associates

Barry McCormack

Estate Agent

Licence Number: 003903

Contact Barry

Ed Dempsey and Associates

Ed Dempsey and Associates