We use cookies to personalise content, to provide social media features and to analyse our traffic and support our customers. We also share information about your use of our site with our social media, advertising and analytics partners who may combine it with other information that you've provided to them or that they've collected from your use of their services. You consent to our cookies if you continue to use our website. Learn more

8 Clarinda Park East Dun Laoghaire Co Dublin A96 V342 IE

Mid Terrace House | Sale

Beds:
5
Baths:
4

Details

Superbly located within a gentle stroll of the Seafront and overlooking Clarinda Park, this elegant two storey over garden level mid terrace property circa 1850, with rear views over to Scotsman’s Bay, enjoys spacious accommodation throughout and is an urban retreat full of light, colour and character.

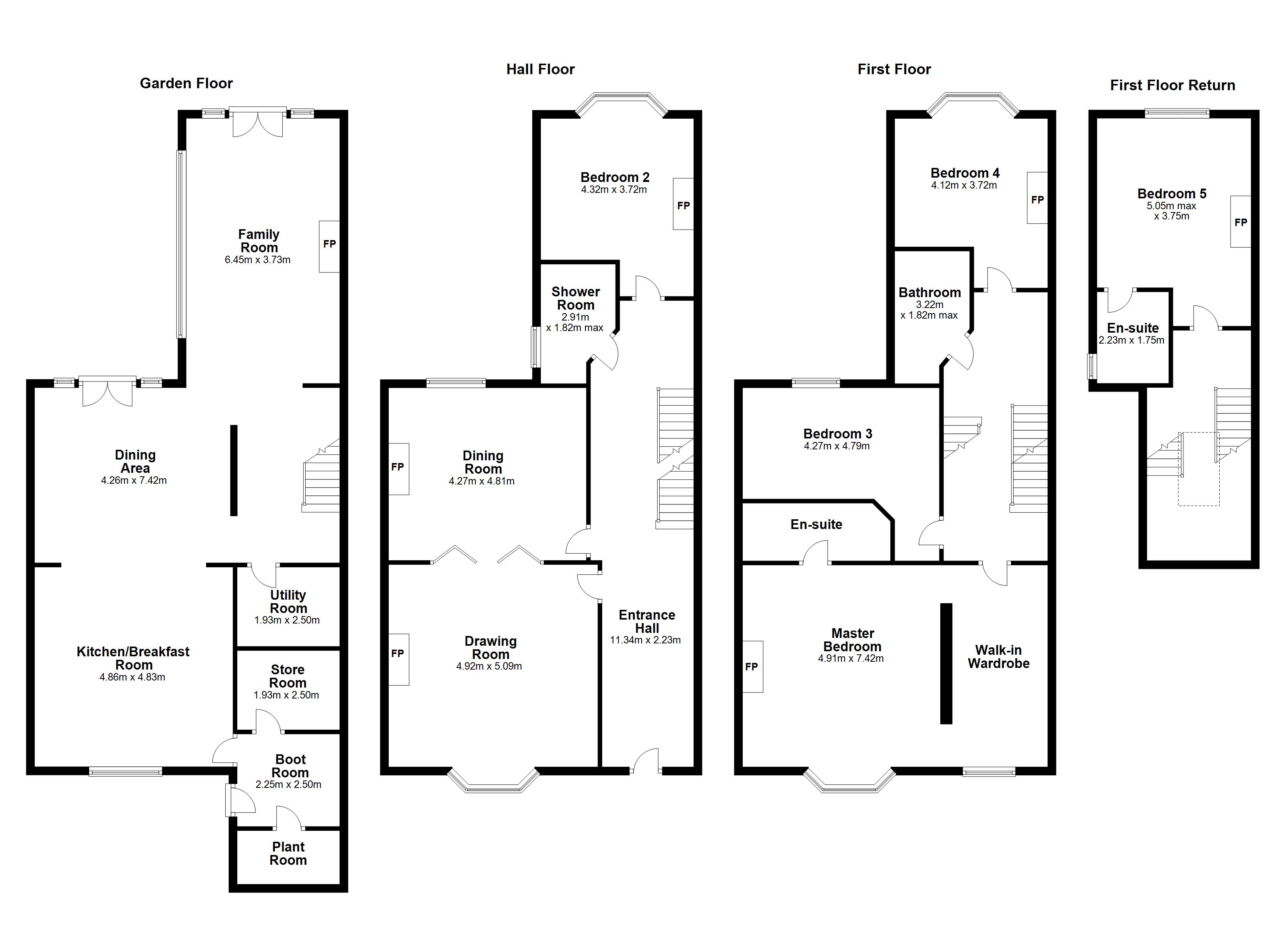
Sympathetically and beautifully restored and refurbished to exacting standards in 2012, the property boasts many elegant period features of a bygone era including magnificent ceiling cornicing, centre roses and period fireplaces. The property was extensively renovated and the refurbishment project included re-wiring, re-plumbing, new heating, windows, internal insulation in the rear and the many cosmetic finishes that are in abundant evidence throughout including a designer kitchen, sumptuous bathrooms and luxurious bedrooms.

Upon entering via the granite steps, adjacent to the welcoming hall is the formal intercommunicating drawing room and living room with folding doors between, and elegant marble fireplaces. The stunning bespoke kitchen/dining room at garden level has state of the art fitted appliances and a central island. With an informal casual dining area and a step down to a comfortable family room this space is perfect to entertain friends and family. In total there are five bedrooms and four bathrooms (two en-suite) and as one would expect the house is finished with all modern conveniences throughout – such as Cat 5 cabling and underfloor heating in the garden level and excellent storage space. There are easily maintained gardens both front and rear with specimen mature plants providing privacy and seclusion. The BBQ area is ideal for the outdoor cooking enthusiasts while guests cand family can relax around the fire pit. There is also a home office/ gym in the rear garden measuring approximately 4m x 3m and pedestrian access to the Lower Glenageary Road.

Clarinda Park is in the heart of Dun Laoghaire and within easy access of a host of recreational and leisure opportunities including the marine facilities and the plentiful supply of trendy eateries and shops. The property boasts some of South Dublin’s finest schools within close proximity and is well served by public transport including buses and the nearby Dart.

‘An exceptional period house on one of Dun Laoghaire’s oldest garden squares’…...


Map Details


Estate Agent

Edwin Dempsey

Estate Agent

Contact Edwin

Ed Dempsey and Associates

Ed Dempsey and Associates