We use cookies to personalise content, to provide social media features and to analyse our traffic and support our customers. We also share information about your use of our site with our social media, advertising and analytics partners who may combine it with other information that you've provided to them or that they've collected from your use of their services. You consent to our cookies if you continue to use our website. Learn more

63 The Rise Mount Merrion Co. Dublin A94 D5D5 IE

Mid Terrace House | Sale

Area:
1938ft2
Beds:
3
Baths:
3

Details

Ed Dempsey and Associates are delighted to present this superbly presented family home to the market. Originally constructed 1935, no. 63 The Rise has had just two owners over the years and comes to the market ready for the next generation in turnkey condition. The property was substantially refurbished, remodelled and extended in 2005 and has been meticulously maintained by the current owners ever since.

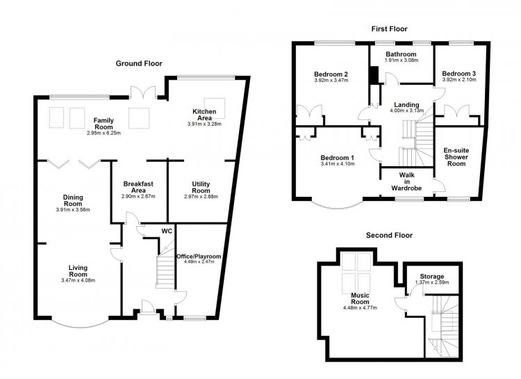
This an instantly appealing Kenny built home with bay windows to the front extends to a very spacious 180 sq. m. and provides terrific space for any family looking to entertain with style. Internally the accommodation comprises an entrance hall with guest W/C off, a magnificent front room with bay window, an elegant dining area with folding doors connecting to the cosy seating area, kitchen/breakfast room featuring all mod-cons and a separate utility room. A very useful front facing home office/playroom completes the ground floor accommodation. One the first floor there are three bedrooms, each generous in size and a main bathroom. Of particular note the master bedroom benefits from a walk-in wardrobe and a luxury appointed shower room en-suite with wet-room shower and under-floor heating. On the second floor there is a superb attic conversion with storage off and is currently used as a music room. Outside the low maintenance rear garden is completely private and benefits from a lovely south-westerly facing orientation. To the front there is off-street parking for three cars.

Situated in the heart of Mount Merrion the property is within close proximity of many neighbourhood shops including Supervalu, Ryan’s Pharmacy, The Food Shop, Dry Cleaners, a Florist, Hair Salon and a GP’s Surgery, while UCD Belfield, churches and a host of recreational and leisure amenities including the beautiful Deer Park with its tennis club are within easy walking distance. Immensely popular sports facilities such as The Aviva Stadium, Donnybrook Stadium, The RDS and Elm Park Golf Club are all nearby and easily accessible. Some of South Dublin’s finest schools are local and include Mount Merrion National School, Mount Anville, Oatlands, The Teresian, St. Michaels and Blackrock College and St. Killians to name just a few. The M50 and city centre are easily accessible while the nearby Sandyford Business Park with more than 1,000 companies and 25,000 people working in the park offers a vibrant atmosphere and is home to major global corporations. Notably Dundrum Town Centre, Dublin’s premier shopping venue and home to leading and designer brands and stylish stores, is a short distance away while the ever-popular Stillorgan Shopping Centre is within striking distance.


Map Details


Estate Agent

Edwin Dempsey

Estate Agent

Licence Number: 003903

Contact Edwin

Ed Dempsey and Associates

Ed Dempsey and Associates

Barry McCormack

Estate Agent

Licence Number: 003903

Contact Barry

Ed Dempsey and Associates

Ed Dempsey and Associates