We use cookies to personalise content, to provide social media features and to analyse our traffic and support our customers. We also share information about your use of our site with our social media, advertising and analytics partners who may combine it with other information that you've provided to them or that they've collected from your use of their services. You consent to our cookies if you continue to use our website. Learn more

41 Reilean Roscam Galway H91HHY6 IE

Mid Terrace House | Sale

Beds:
3
Baths:
3

Details

O'Donnellan and Joyce are delighted to offer for sale a stunning three bed mid terrace property located at Reilean, Roscam on the East side of Galway City.

Reilean is superbly positioned between the bustling village of Oranmore and the City of Galway.

Built by premier builders O Malley Construction, these modern homes have been designed to complement their breath-taking surroundings and each property comes equipped to the highest standards that cater to all requirements.

The development comprises of a mixture of detached, semi-detached & terraced properties. The communal areas are well-maintained with a children’s play playground and generous open spaces in Reilean.

Nearby outdoor amenities include football pitches, tennis courts, and nine acres of amenity lands with extensive walkways.

There are a host of local amenities & services such as nearby shopping centres, retail parks, as well as quality local schools & sporting facilities.

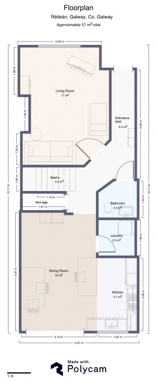
No 41 Reilean is both stylish & practical with well-proportioned rooms over 2 stories.

The accommodation comprises of an entrance hall, a living room with feature fireplace and a spacious open plan dining & kitchen. A utility room and get WC completes the ground floor.

The first floor contains a main bathroom and three fine sized bedrooms with one providing an ensuite.

Externally the property has ample parking to the front, a gated back entrance leading to a private rear garden with a paved patio area and a small lawn area suitable for outdoor seating.

Several nearby employment hubs, multi-national companies & business parks are close by, such as Boston Scientific, Medtronic, Creganna & Parkmore, Galway Clinic & Merlin Park hospitals.

Quality transport links give easy access to Galway City & neighbouring suburbs, as well as proximity to the M6 & M18 motorways, with quick links to Tuam, Limerick and Shannon.

No. 41 Reilean is the ideal property for a variety of potential purchasers. The property offers ample accommodation & living space in turn-key condition, making it perfect for immediate occupancy.

Viewing is highly recommended and guaranteed not to disappoint.

Keep up to-date with NEW PROPERTIES by registering your details on our database

For Further details please contact our office on 091-564212 OFFICE OPENING HOURS - MON TO FRI 9AM TO 5:30PM

Properties can be viewed on our website www.odj.ie

NOTE: These particulars are not to be considered a formal offer. They are for information only and give a general idea of the property. They are not to be taken as forming any part of a resulting contract, nor to be relied upon as statements or representations of fact. Whilst every care is taken in their preparation, neither O’Donnellan & Joyce Auctioneers nor the vendor accept any liability as to their accuracy. Intending purchasers must satisfy themselves by personal inspection or otherwise as to the correctness of these particulars. No person in the employment of O’Donnellan & Joyce Auctioneers has any authority to make or give any representation or warranty whatever in relation to this property.

Features

Central Heating Garden Mains Electricity Mains Gas

Map Details


Estate Agent

Robyn Commons

Estate Agent (Trainee)

Licence Number: 001955

Contact Robyn