We use cookies to personalise content, to provide social media features and to analyse our traffic and support our customers. We also share information about your use of our site with our social media, advertising and analytics partners who may combine it with other information that you've provided to them or that they've collected from your use of their services. You consent to our cookies if you continue to use our website. Learn more

1 River Oaks Claregalway Co Galway H91 HCA4 IE

Semi Detached House | Sale

Area:
101ft2
Beds:
4
Baths:
3

Details

O’Donnellan & Joyce Auctioneers are pleased to offer to for sale a four-bed semi-detached in the well-established location of River Oaks, Claregalway, Co Galway.

Originally constructed in the late 2000's, the development is well-maintained with several green areas throughout.

Claregalway Village is a thriving community with a variety of essential services and amenities including hotels, supermarkets, pubs, restaurants, a church, medical centres and a host of commercial units including a post office.

There are several excellent local national schools, secondary schools, creches, GAA pitches and sports hubs in the immediate area.

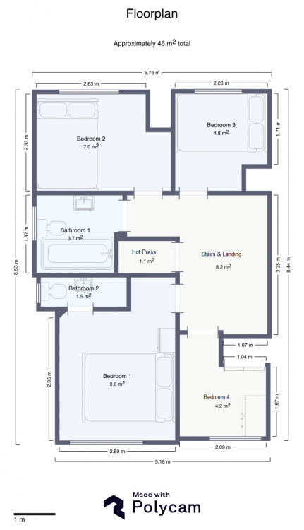
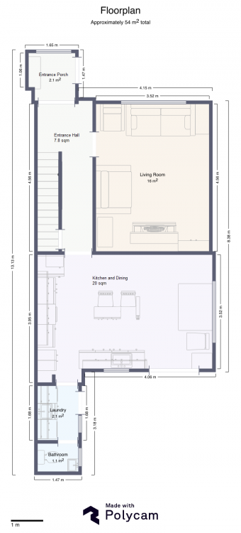
No 1 River Oaks measures circa100 sqm over two storeys, presented in excellent condition with careful attention to detail and decor throughout.

On entering the property you are greeted by the entrance porch that leads into the bright & spacious entrance hall with porcelain tiled flooring and off the hall is the family lounge room with fireplace and feature insert stove.

The heart of the home is an open plan kitchen and dining with extensive fitted units, porcelain flooring and multiple windows and a double patio door drawing in a vast amount of light. A guest WC and utility room completes the ground floor.

Upstairs the property provides a main bathroom and four fine sized bedrooms, with the master bedroom ensuite.

Externally, No 1 River Oaks offers ample parking to front, a wide side entrance and a low maintenance rear garden with a built in seating area.

A block built shed currently used as a home office provides an abundance of additional storage.

Quality transport links allow quick & easy access to Galway City, Tuam and several employment hubs at Parkmore and Ballybrit Business Parks.

Additionally, the M6 & M18 motorways are very accessible and provide quick links to many of Ireland’s largest cities, towns, and villages.

No 1 River Oaks is an attractive home in a convenient and well-established location. It is ideal for a variety of purchasers, whether first time buyer, investor, or owner occupier.

Viewing is highly recommended and guaranteed not to disappoint.

Keep up to-date with NEW PROPERTIES by registering your details on our database

For Further details please contact our office on 091-564212 OFFICE OPENING HOURS - MON TO FRI 9AM TO 5:30PM

Properties can be viewed on our website www.odj.ie

NOTE: These particulars are not to be considered a formal offer. They are for information only and give a general idea of the property. They are not to be taken as forming any part of a resulting contract, nor to be relied upon as statements or representations of fact. Whilst every care is taken in their preparation, neither O’Donnellan & Joyce Auctioneers nor the vendor accept any liability as to their accuracy. Intending purchasers must satisfy themselves by personal inspection or otherwise as to the correctness of these particulars. No person in the employment of O’Donnellan & Joyce Auctioneers has any authority to make or give any representation or warranty whatever in relation to this property.


Map Details


Estate Agent

Jamie Costello

Estate Agent

Licence Number: 001955

Contact Jamie

Emma Carpenter

Senior Admin

Licence Number: 001955

Contact Emma